
Идеально подходит для: большой семьи, загородного дома выходного дня, стильного коттеджа в живописной местности.
НАЙТ 94 – это новое понимание загородной жизни. Панорамные окна, просторная кухня-гостиная, несколько уютных спален и современный дизайн создают идеальное пространство для жизни и отдыха. Этот дом – выбор тех, кто не согласен на компромиссы.
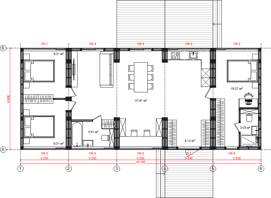
Площадь модуля:94 м²
Этажность:1 этаж
Стоимость:от 6 139 000 ₽
Краткие характеристики
Тип фундамента:Свайно-винтовой
Габариты:16,15 м × 6,83 м
Высота потолков:2,5 м
Каркас тен:Стропильные фермы на МЗП
Усиление каркаса:Наружный контур из фанеры 15 мм
Тип отделки фасада:Планкен из лиственницы
Тип кровли:Плоская кровля | Профлист
Утепление:Напыляемый утеплитель (8см)
Отопление:Инфракрасный теплый пол, радиаторы
Окна и двери:5-камерные стеклопакеты, 70 мм
Планировки и цели
Технология строительства
Интерьерные решения
Преимущества построить модульный дом с нами
Стиль СЕВЕР — классика и натуральные материалы.
- База — для самостоятельной отделки
- Оптима — с отделкой и инженерией
- Премиум — с мебелью и техникой
Гарантия на каждый модуль
Забудьте о проблемах загородной жизни! Если произошла поломка — наши мастера решат практически все задачи абсолютно бесплатно, в рамках гарантийного обслуживания. Вам останется лишь наслаждаться жизнью в собственном доме.






















