
Идеально подходит для: семейного проживания, арендного бизнеса, отдыха на природе.
НАЙТ 57 – это современное жилище для тех, кто хочет больше свободы. Просторная кухня-гостиная с панорамными окнами, приватные спальни и возможность интеграции мастер-спальни делают этот дом настоящей находкой для любителей продуманного дизайна.
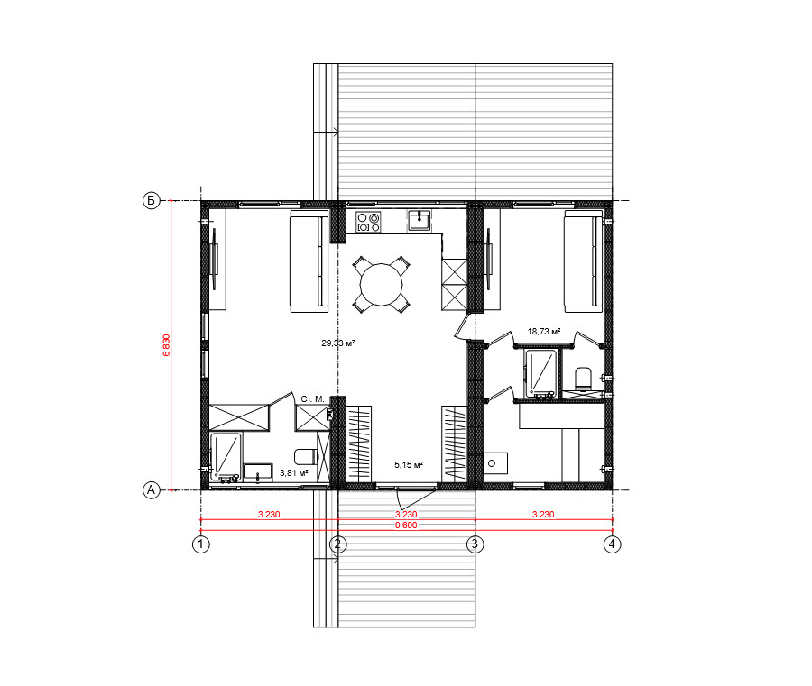
Площадь модуля:57 м²
Этажность:1 этаж
Стоимость:от 3 699 000 ₽
Краткие характеристики
Тип фундамента:Свайно-винтовой
Габариты:9,69 м × 6,83 м
Высота потолков:2,5 м
Каркас тен:Стропильные фермы на МЗП
Усиление каркаса:Наружный контур из фанеры 15 мм
Тип отделки фасада:Планкен из лиственницы
Тип кровли:Плоская кровля | Профлист
Утепление:Напыляемый утеплитель (8см)
Отопление:Инфракрасный теплый пол, радиаторы
Окна и двери:5-камерные стеклопакеты, 70 мм
Планировки и цели
Технология строительства
Интерьерные решения
Преимущества построить модульный дом с нами
Стиль СЕВЕР — классика и натуральные материалы.
- База — для самостоятельной отделки
- Оптима — с отделкой и инженерией
- Премиум — с мебелью и техникой
Гарантия на каждый модуль
Забудьте о проблемах загородной жизни! Если произошла поломка — наши мастера решат практически все задачи абсолютно бесплатно, в рамках гарантийного обслуживания. Вам останется лишь наслаждаться жизнью в собственном доме.





















